Vidéos Site Web

Ref:

À LOUER – Quartet - Locaux Tertiaires et Secondaires au Cœur de Genève

CHF 14'487 14'487 14'487 .- Rent upon request Price upon request

Charges (per month):
CHF .-
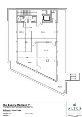
Suface:
656
:
Rue de Lyon 114 , 1203
Availability:
----
Theoretical gross yield:

Visits

Show telephone number

Information about the object Visit and information about the property

Show telephone number

  • Submit your application online
  • Create your email alerts
  • Manage your favourite properties
  • Download the brochure
  • Create your email alerts
  • Manage your favourite properties
  • Personalised proposals

Contact us to estimate your property

Amenities

Similar properties